La Manufacture - Salle Nonante

Studio de danse et théâtre

La Haute école des arts de la scène, La Manufacture, s'est implantée en 2003 au Grand-Pré 5 dans l'ancienne usine de taille de pierre précieuse, l'un des derniers vestiges du passé industriel de la plaine de Malley. Le plan du premier bâtiment de l’usine a été déposé en 1942 par J. Fallet.

Aujourd'hui trop à l'étroit pour offrir de bonnes conditions de travail et de représentation aux étudiants, dans une première étape de développement conforme au PGA elle s'étend avec l'adjonction d'un studio de danse et théâtre. Une vision directrice à plus grande échelle est en cours pour permettre un développement plus important à terme.

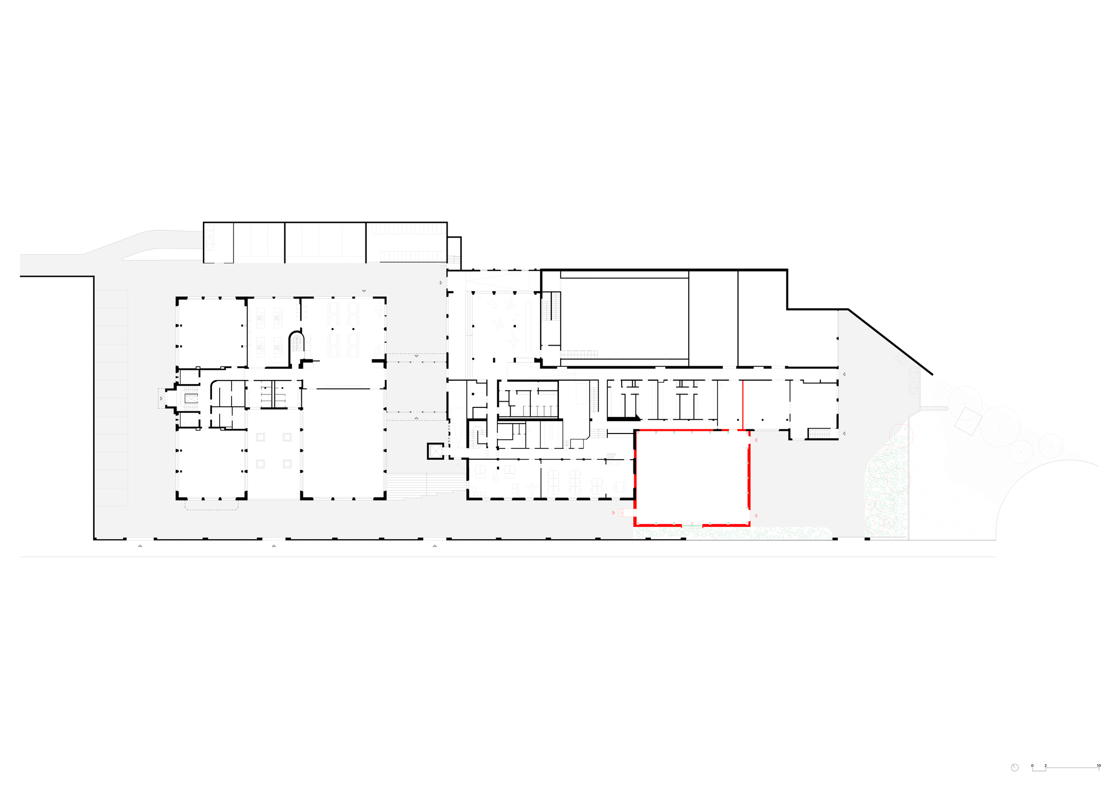
Le site, vestige du passé industriel et témoin des premières reconversions du patrimoine en lieu culturel, est également modelé par une topographie singulière liée au talus du viaduc du Galicien qui forme une coupure importante par rapport au nord. L’accolement de volume successif participe au caractère du lieu. L’implantation de ce nouveau volume cherche à renforcer cette identité.

Dans une logique de cohérence de l’ensemble bâti, le nouveau volume se glisse sous la corniche du bâtiment existant afin de ne pas intervenir sur celui-ci. Sa toiture est plate et s’exprime comme un volume de transition permettant à terme une extension à l’est.

Le bâtiment ne cherche pas à s’exprimer comme une « boîte noire » mais au contraire à participer à la requalification de la rue du Grand-Pré comme un espace public de rencontre.
Une grande ouverture au Sud composée de 6 fenêtres réemployées de l’existant rappelle le passé industriel du bâtiment.
L'approche du projet est économique et low-tech, dans l'esprit du lieu les façades Est et Nord sont conservées en l'état avec leur modénature et couleur.
La structure principale du bâtiment en poutre métallique en provenance de la Ressourcerie (FR) est réemployée à 80% et laissée visible.

2401 - Une charpente en profilés métalliques de réemploi

Localisation
Lausanne
Maître d'ouvrage
La Manufacture
Programme
Studio de danse et théâtre
Prestations effectuées
Phases sia 31-53 (55%)
Projet
2021-2024
Réalisation
2025
Equipe
Coopérative 2401, AZ ingénieurs, Archac, Juliette Pierangelo, Thomas Cattin
Réalisation
en EG Eyab + schaerholzbau

Voir plus

Agrandir

photo 240, la Ressourcerie

/ 27

Fermer la carte