Réservation de salles de conférence du Biotope



Les salles de conférence du Biotope sont disponibles pour une réservation en dehors des heures de bureaux pour des personnes extérieures.
Pour réserver une salle :

  • Vérifier la disponibilité de la salle désirée :

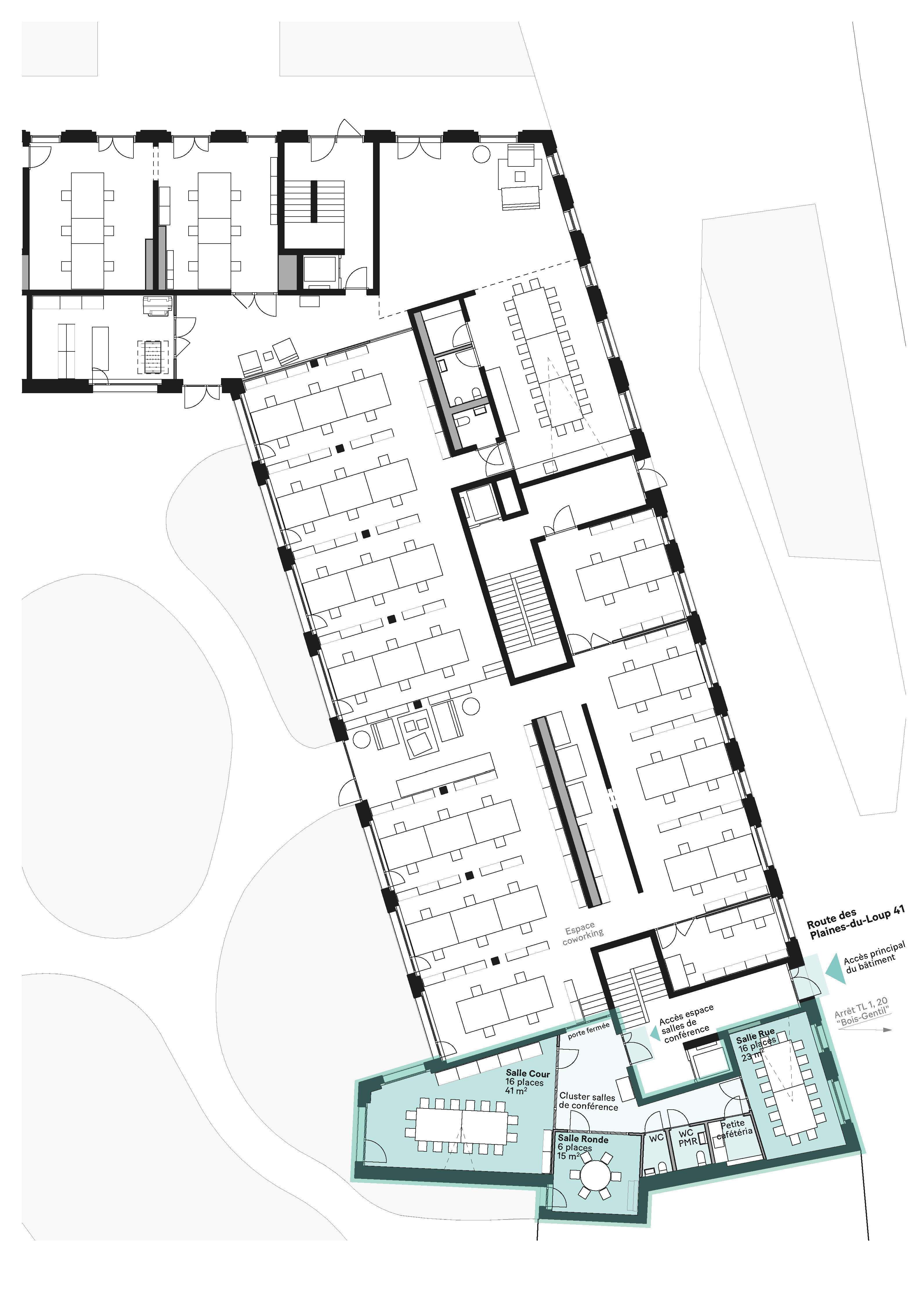
Salle Cour

Salle Ronde

Salle Rue

  • Réserver la salle par e-mail (reservation@tribu-architecture.ch) ou par téléphone (Melody Gilliéron au 021 545 52 21) en spécifiant la salle, la date, votre statut et un descriptif succinct de la séance. 

Coûts (Membre de la section du Bled / Autres sans but lucratif / Autres avec but lucratif) :   

Soirée 1/2 journée de week-end Journée de week-end
Salle Cour (41 m2 / 16 personnes)20.- / 50.- / 100.-30.- / 75.- / 150.- 50.- / 120.- / 200.-
Salle Ronde (15 m2 / 6 personnes)10.- / 25.- / 50.-15.- / 40.- / 75.-30.- / 70.- / 120.-
Salle Rue (23 m2 / 16 personnes)15.- / 40.- / 75.-25.- / 50.- / 100.-40.- / 80.- / 150.-


Pour les Salles, le prix comprend l'utilisation des WC et de la petite cafétéria y.-c. thé et café.

Une caution de 200.- est demandée pour chaque réservation. 

Frais exigés en cas d'annulation :

- Une fois la réservation confirmée : 50% du montant total. 

- Dès la remise en main propre du badge d'accès : 100% du montant total. 

Les espaces doivent être rendus rangés, vaisselle sale déposée dans le lave-vaisselle, tables nettoyées et sol balayé. Il n'y a pas de possibilité de cuisiner/rechauffer des aliments, ni dans la petite cafétéria, ni dans l'espace des salles de conférence.

Prix pour rencontres régulières sur demande.

Une sono avec 4 micros sans fil est disponible pour un montant de 100.- pour une journée.