Biotope : du grec ancien ("bios"), vie et ("topos"), lieu
Le Biotope est un espace de coworking et de partage : il s’adresse à toute entreprise, bureau, association, organisme, entité ou personne partageant les valeurs de la transition écologique et sociale. Il est souhaité que chaque entité du Biotope contribue activement à la vie du lieu, sa vision et son organisation.
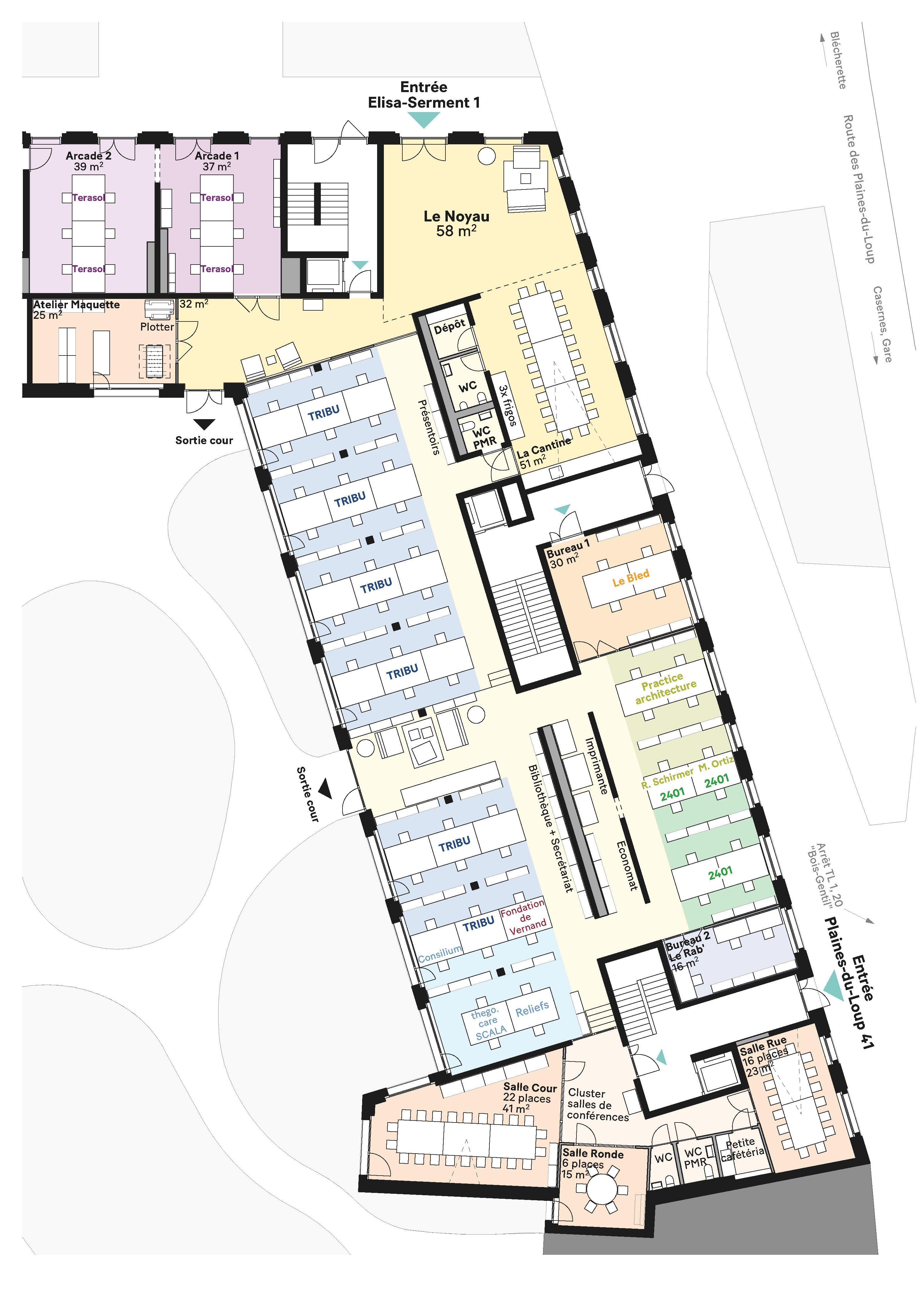
Les entités du Biotope :
- TRIBU architecture, bureau d'architecture et d'urbanisme
- SCCH Le Bled, coopérative sociale d'habitants
- La Fondation de Vernand, au service de la singularité
-Société Coopérative 2401, coopérative d'ingénieurs en construction durable
- Association Reliefs, participation inclusive
- SCALA, coopérative d'artistes
- CONSILIUM, ingénierie civile
- TheGo.Care, dispositif médical
- Terasol, revalorisation des sols
- Practice architecture, bureau d'architecture
- SEA- Engineering & architecture
- Marcelo Ortiz, Informatique
Plus de 250m2 de communs accessibles à tout.e occupant.e du Biotope, compris dans le prix de location
– La Cantine : espace d’expérimentation de 57 m2, cafétéria de 51 m2 et hall de 31 m2 avec baby-foot donnant accès directement à la cour intérieure arborée
– Le Cluster des salles de conférence : 3 salles de 15, 23 et 41 m2, avec WC et petite cafétéria
– L’atelier maquette (carton/sagex) de 25 m2
– Le Dépôt (espaces de cave pouvant être mis à disposition)
Aussi pour les personnes externe au Biotope
Incrivez vous à notre newsletter ici pour rester informé des activités du Biotope !
Terasol, colocataire du Biotope, sous-loue une ou deux places de travail pour une année dans un espace partagé dans une arcade de 6 places. Contact : caroline.coquelin@terasol.ch
– Place en environnement ouvert dans un espace partagé de 4 places - actuellement toutes occupées
– Place en environnement dans un espace partagé dans une arcade de 6 places - actuellement toutes occupées
– Espace bureau privé (30 m2) - actuellement occupé
– Espace bureau privé (16 m2) - actuellement occupé
Le Biotope, Rue Élisa-Serment n°1, 1018 Lausanne, +41 21 545 52 00
biotope@tribu-architecture.ch, www.tribu-architecture.ch/biotope
Personnes de contact : Melody Gilliéron, Gaël Cochand ou Christophe Gnaegi











